木調フェンスと人工芝が自然と調和のとれた新築ナチュラル セミクローズ外構
プラン内容 No.3065
※データは見積当時のものです
- 見積参考価格
- 394 万円
- 工事種別
- 新築外構
- 地形
- 四角
- 方位
- 南
- 車の台数
- 2台
- 登録日
- 2025-06-14
イメージパース・図面







コメント
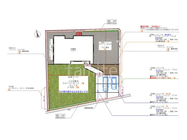
既存ブロック上に目隠しフェンス F&F マイティウッドデコllを設置し、プライバシーを守りつつ温かみのある木調で自然と調和のとれた空間に仕上げました。 お庭にはお手入れが簡単で一年中緑を楽しめる人工芝を敷き、快適な憩いの空間を演出。 建物周りには防草シートと砂利を敷くことで雑草の発生を抑え、メンテナンス性に優れたスペースを作りました。







