塗り壁門柱が優しい印象の新築シンプル セミクローズ外構
プラン内容 No.3068
※データは見積当時のものです
- 見積参考価格
- 273 万円
- 工事面積
- 81m 2
- 工事種別
- 新築外構
- 地形
- 角地
- 方位
- 南
- 車の台数
- 1台
- 登録日
- 2025-06-10
イメージパース・図面









コメント
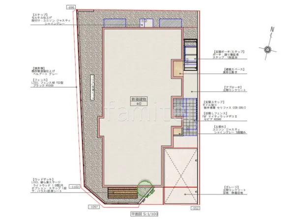
エントランスに塗り壁門柱を設け、玄関まわりに優しい印象をプラスしました。 駐車スペースには1台用カーポート LIXIL ネスカFを設置し、スマートなデザインで車を雨や紫外線から守ります。 お庭にはウッドデッキ LIXIL 樹ら楽ステージを設け、プライバシーを確保する目隠しフェンス LIXIL AB YS3型で安心感のある空間に仕上げました。 さらに、独立式テラス屋根 YKKAP レセパ Lタイプを設置することで、天候に左右されず洗濯物を干せるスペースを作りました。









