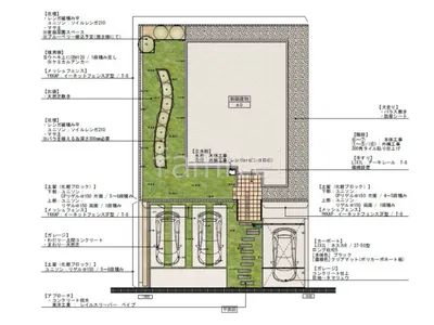
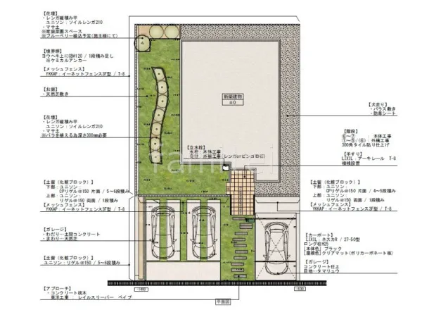
天然芝と家庭菜園スペースで緑を楽しむ新築ナチュラル オープン外構
プラン内容 No.3124
※データは見積当時のものです
- 見積参考価格
- 311 万円
- 工事面積
- 134m 2
- 工事種別
- 新築外構
- 地形
- 四角
- 方位
- 南
- 車の台数
- 3台以上
- 登録日
- 2022-05-15
イメージパース・図面







コメント
玄関に繋がるアプローチにはコンクリート枕木 東洋工業 レイルスリーパーペイブを使用し、自然な風合いでナチュラルな印象をプラスしました。 門柱は角柱門柱を採用し、シンプルながらも機能性の高い玄関まわりに仕上げました。 駐車スペースには1台用カーポート LIXIL ネスカFを設置し、雨や日差しから車を守ります。 お庭には天然芝を敷き、家庭菜園スペースとして花壇を設けることで、四季を通じて緑を楽しめる空間を作りました。







